£1,755 PCM

Tenancy Information

3 bedroom Student Flat to rent in Oakland Road, Jesmond, Newcaste upon Tyne

Request A Viewing
  • Flat
  • 3 bed
  • 1 bath
  • 1 reception

Key Features

  • £135pppw (£165pppw inc bills)
  • Three double bedrooms
  • Great location and close to all amenities
  • Walking distance to city centre
  • Parking
  • Close to universities
  • Available September 2026
  • Council Tax Band B

Description

Available September 2026 | £135pppw (£165pppw inc bills) | Three bedrooms

This three-bedroom upper flat on Oakland Road is offered fully furnished and provides a comfortable home in a sought-after Jesmond location.

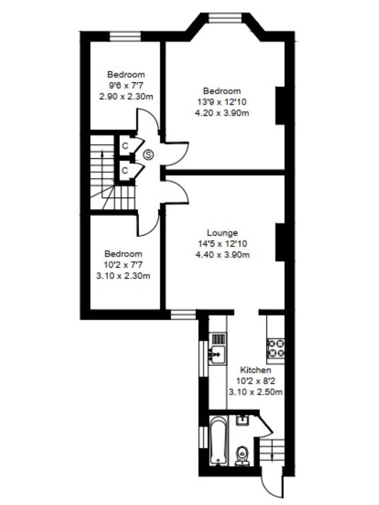
The property briefly comprises: stairs to the first floor landing, three double bedrooms, lounge, fitted kitchen and bathroom, with shower over bath.

Close to all local amenities, West Jesmond Metro Station and within walking distance of Osborne Road and both Universities.


Video Tour



Floorplan

Floorplan

EPC

EPC for Oakland Road, Jesmond, Newcaste upon Tyne

Location


£ 0
£ 0

Your estimated gross rental yield would be:

0.00%
Share this property