£1,690 PCM

Tenancy Information

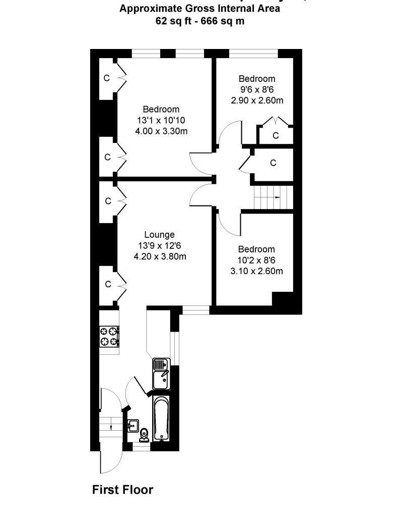
3 bedroom Student Flat to rent in Tavistock Road, Jesmond, Newcastle Upon Tyne

Request A Viewing
  • Flat
  • 3 bed
  • 1 bath
  • 1 reception

Key Features

  • £130 pppw (£160pppw with Bills)
  • Available July 2026
  • FURNISHED
  • Three double bedrooms
  • Furnished upper flat
  • Private rear yard
  • Epc D
  • Close to West Jesmond Metro and both universities

Description

Three Double Bedrooms | Furnished Upper Flat | Superb Jesmond Location | Available July 2026 | £130 pppw (£160pppw with Bills)

Bowson are delighted to welcome to the rental market this well-presented three-bedroom upper flat, ideally located on Tavistock Road in West Jesmond. Perfectly positioned for local shops, cafés, and restaurants, the property also offers easy access to West Jesmond Metro and both universities, making it an excellent choice for students.

The property comprises a spacious lounge, a fitted kitchen, three double bedrooms, and a bathroom with shower over bath. Externally, there is a private yard to the rear providing useful outdoor space.

Offered fully furnished and managed by Bowson.


Video Tour



Floorplan

Floorplan

EPC

EPC for Tavistock Road, Jesmond, Newcastle Upon Tyne

Location


£ 0
£ 0

Your estimated gross rental yield would be:

0.00%
Share this property